 |
| |
| CATEGORIA: |
| Terratetto |
|
| RIF.: |
| 786 |
| VANI.: |
| 5 |
| DESCRIZIONE: |
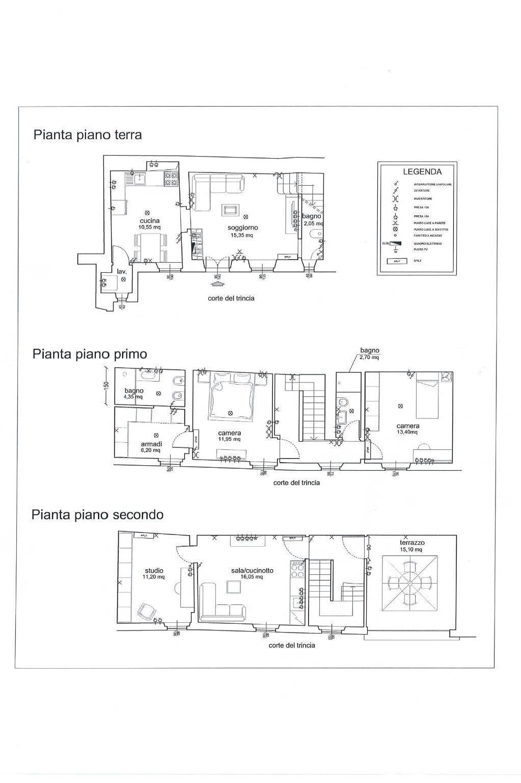
Piazza Mercatale, in posizione interna e riservata, terratetto attualmente in fase di completa ristrutturazione.
L’immobile si sviluppa su più livelli ed è così composto:
Piano terra: ingresso, soggiorno, cucina abitabile e bagno di servizio.
Piano primo: due camere da letto, di cui una con studio interno o eventuale guardaroba, oltre a un secondo bagno.
Completano la proprietà l´ampia mansarda (possibilità terza camera o ulteriore zona living) con accesso diretto allo splendido terrazzo a tasca, ideale per momenti di relax all’aperto, ed ulteriore bagno/lavanderia.
L´immobile offre la possibilità di personalizzare finiture e impianti secondo le proprie esigenze. Sono già stati eseguiti importanti interventi strutturali, tra cui il rifacimento delle facciate e del tetto.
Dispone anche di una piccola resede chiusa, ideale come spazio di parcheggio per moto o biciclette.
Consegna estate 2026.
|
|
| PREZZO: |
| €. 350.000 |
| |
| |
 |
PDF |
|
|
| |
|
|